About us

A Thoms designs was formed in 1996 as a family business focusing on contemporary costal designs throughout the Bellarine Peninsula, Surf Coast and beyond. Our aim is to create unique homes that are environmentally sustainable and practical that meet the needs of the client. We strongly believe the design of a home should respect the surrounding environment; for example in Pt Lonsdale using natural timbers and earthy materials to tie in with the Moonah and Tea tree landscape. Features such as a northern based orientation, natural light and cross ventilation are factored into the design.

 

Profile

1. Concept Sketch

From your brief we present a solution in the form of a hand drawn sketch outlining the form of the building and the layout.

 

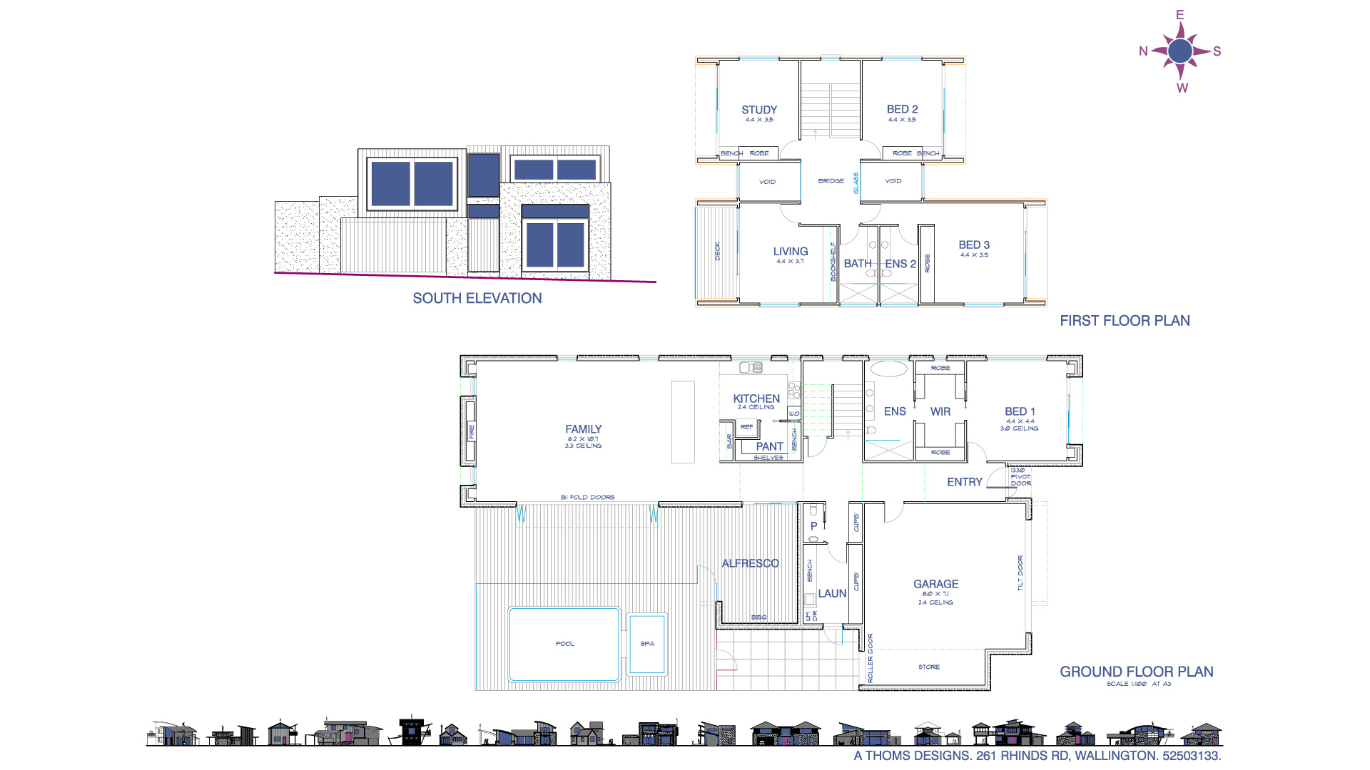
2. CAD Sketch

At the sketch plan stage we further develop the hand drawn sketch into a computer drawn plan and elevations with more detail and to a more accurate scale.

 

3. 3D Renders

We then take the sketch plan to create a series of photo realistic 3D rendered images that help you visualise the exterior and interior spaces of your design.

 

4. Planing Drawings

Planing permission may be required for some projects. We provide the drawings and written responses required.

 

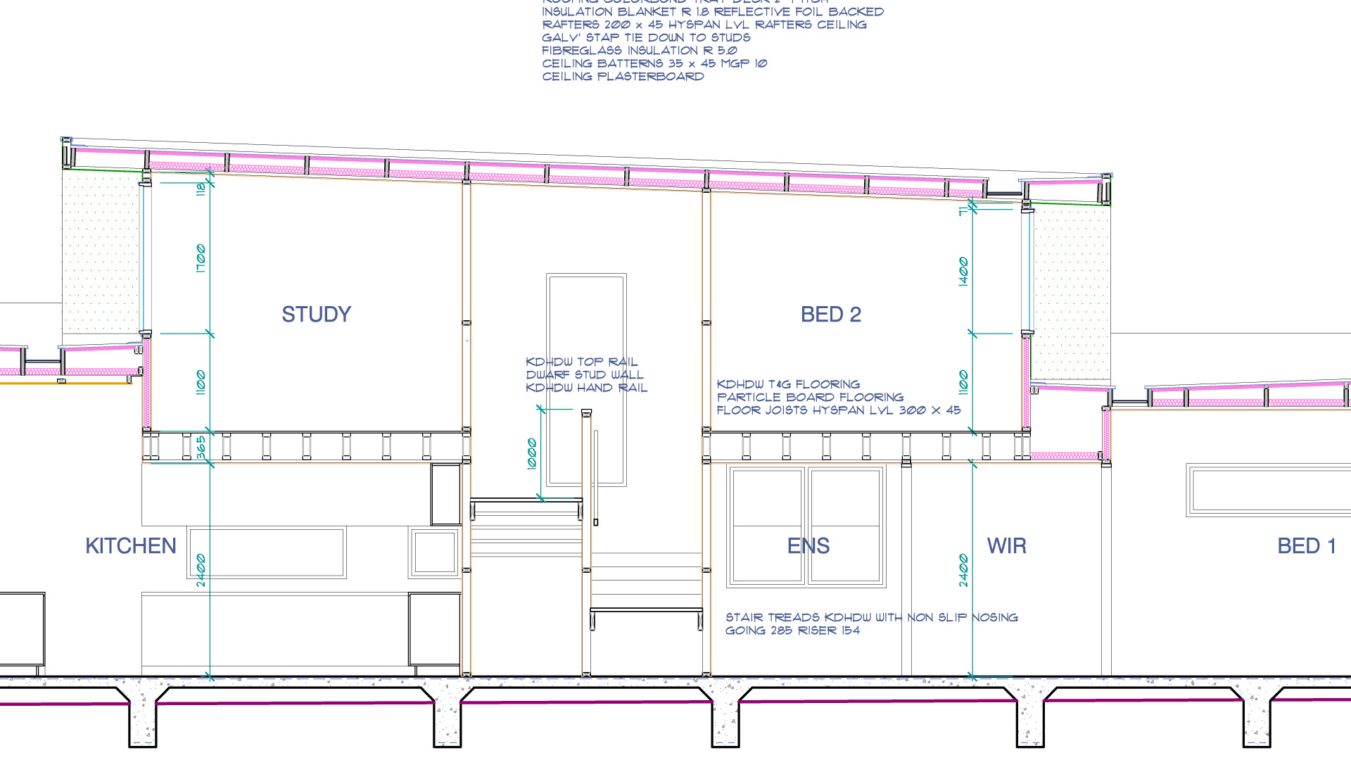
5. Working Drawings

At this stage we document the design in a set of drawings for construction use. We take care to ensure our drawings are coherent and easily readable for all trades.